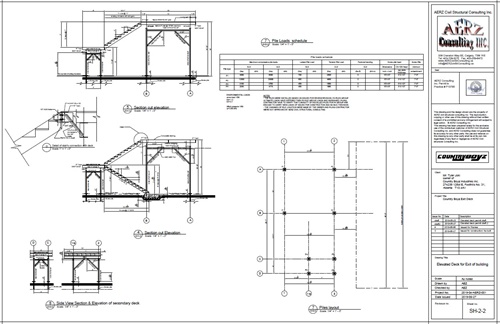
AERZ civil structural consulting provided engineering, drafting and construction support for an Elevated exit steel deck and its stairs on screw piles at Foothills, Alberta.
The Deck is 15 ft high and around 20 ft by 15 ft consisting of steel I girder and galvanized cold formed joists. There are two stair flights and a secondary landing. the columns are steel HSS sections.
The steel connections are mainly welded or screwed by self drilling screws. the decking is composite decking to protect the cold formed section from chemical attacks that can happen if you use treated wood decking.

AERZ provide design, engineering, drafting for wood and steel new decks. we also provide inspection and assessment of existing decks and houses. if you live in Calgary greater Area we love to here about your new project or design changes.
Discover more from AERZ Civil Structural Consulting Inc.
Subscribe to get the latest posts sent to your email.

