What was AERZ civil structural consulting Inc. project?
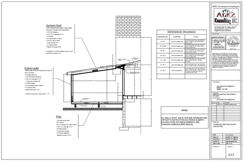
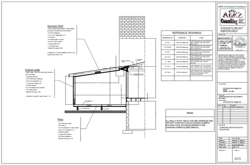
AERZ Civil Structural Consulting Inc. has recently completed energy efficient design and construction support for four season sunroom addition for a house in SW of Calgary, according to ALBERTA BUILDING CODE 2019 and City of Calgary permit requirements.
The size of sunroom is 24 ft by 15 ft by 8ft at eave. Piles were used as foundation. The walls, floor and roof are wood construction. Our professional Engineer Ashraf Zaghloul was responsible for design, inspections and construction and permitting support. We provided engineered drawings plans for the project and permitting purposes.
We provided design for home additions and three and four season(#Energy_efficient_building) in city of Calgary and surrounding area. We do energy efficient design and analysis.
A link below for video made by our client for the Sunroom construction
How AERZ civil structural consulting can add value to your project?
If you need high quality engineering and help with your addition or renovation project and need help with city of Calgary permitting application, construction support and framing_inspection send us email at Ashraf@AERZcivStrConsulting.ca or Call us at (403)708-3275. AERZ civil structural consulting team will be happy to assist you with your needs for your next project.
Discover more from AERZ Civil Structural Consulting Inc.
Subscribe to get the latest posts sent to your email.

